






🏡 Casa individuala luminoasa, cu geamuri mari si priveliste superba spre Sibiu
📍 Sura Mare, la 5 minute de Hornbach / Jumbo
Casa are un design modern, plina de lumina naturala, cu geamuri mari, geam pe colt si o vedere panoramica rara spre Sibiu.
🔹 Date principale
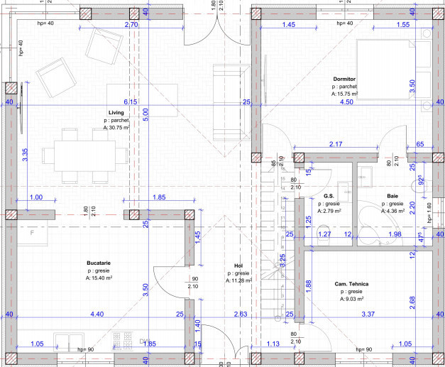
• 180 mp utili
• Spatiu locuibil total: 210 mp (90 mp nivel + 30 mp pivnita + 90 mp etaj/pod)
• Teren 350 mp (20 × 17.5 m)
• Beci/Pivnita: 30 mp
• Terasa exterioara: 3 × 5 m
🏗️ Stadiu predare
• Exterior la gata
• Interior la alb
• Incalzire in pardoseala
• Izolatie polistiren 15 cm
💸 Preturi – negociabile in functie de nivelul dorit de finisare
Varianta 1
• La alb (fara pod amenajat): 190.000 EUR
• La cheie: 210.000 EUR
Varianta 2
• La alb (cu pod locuibil amenajat: compartimentare + instalatii electrice si sanitare + izolatii + incalzire in pardoseala): 200.000 EUR
• La cheie: 225.000 EUR
Avans minim: 25%
📞 Pentru detalii si vizionari, ne puteti contacta.