




Duplex elegant cu 4 camere, curte și loc de parcare – design modern
Descoperă noul tău cămin într-un ansamblu rezidențial modern, compus din vile tip duplex cu design arhitectural contemporan, spații bine optimizate și finisaje exterioare de calitate superioară. Fiecare unitate este concepută pentru familii care își doresc confort, funcționalitate și intimitate.
Caracteristici principale:
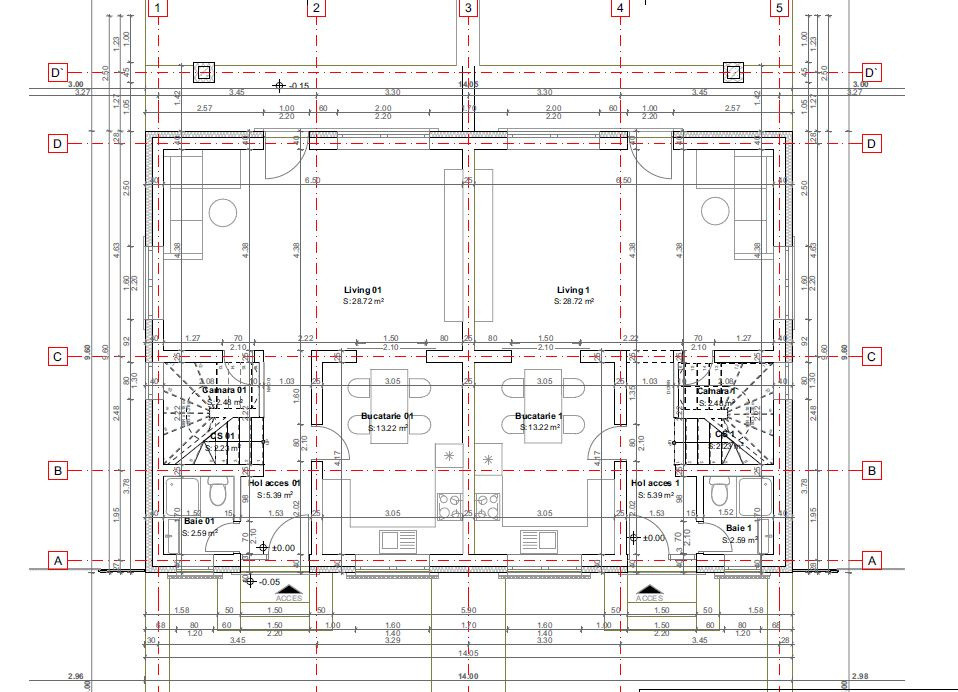
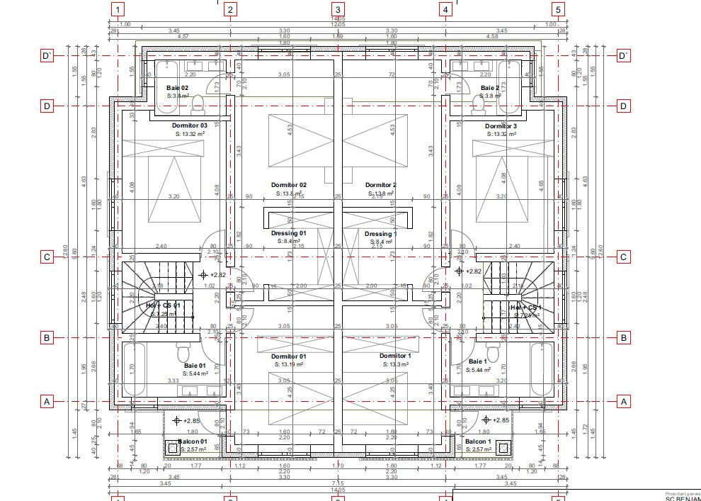
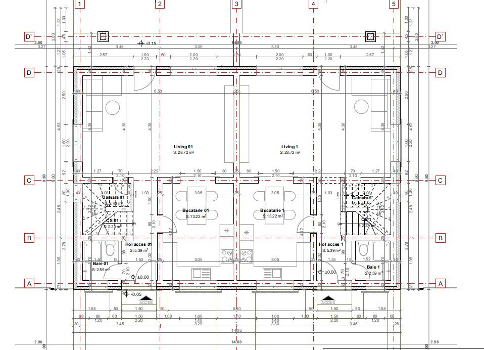
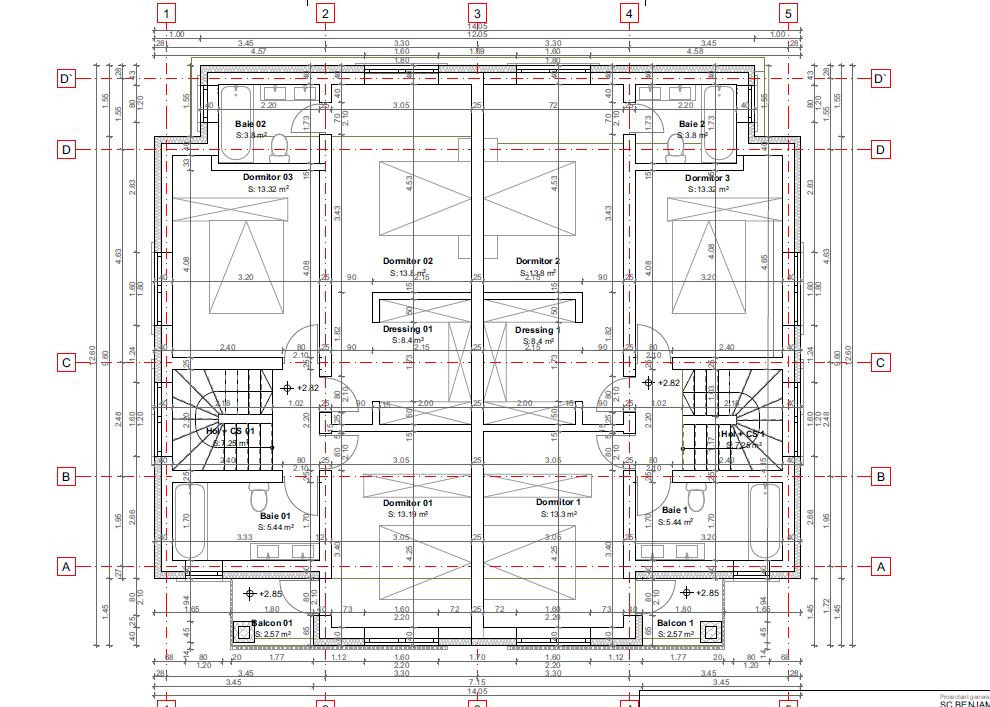
Structură P+1, compartimentare eficientă
3 dormitoare spațioase + dressing generos
Living de 28.72 mp – zonă perfectă de relaxare
Bucătărie închisă: 13.22 mp
Camara 2.45mp
3 băi
Loc de parcare inclus în fața casei
Curte privată
Balcon generos la etaj
Suprafețe utile (per unitate):
Suprafață totală utilă: aproximativ 120 mp
Teren liber : ~150 mp
Balcon: 5.25 mp
Alte detalii:
Construcție nouă 2025
Structură beton armat + cărămidă
Tâmplărie PVC
Izolație exterioară de înaltă eficiență energetică
Predare la cheie in exterior si rosu in interior
PRET: 129.700 TVA 21% INCLUS
Predarea imobilului este estimată pentru anul 2026, întrucât acesta se află în curs de construcție.
📍 Locație Sura Mica: ansamblu privat, acces facil către oraș, școli, magazine și mijloace de transport.
Zonă liniștită, ideală pentru familii.
📞 Contactează-ne pentru vizionări sau mai multe detalii!