
















Vă prezentăm o proprietate rară prin dimensiuni și versatilitate, situată pe Strada Câmpului nr. 56. Cu o arhitectură solidă și o compartimentare excepțională desfășurată pe 4 niveluri, această clădire este pregătită să devină noul punct de reper pentru o afacere de anvergură sau o reședință nobiliară.
📐 Configurație și Cifre Impresionante:
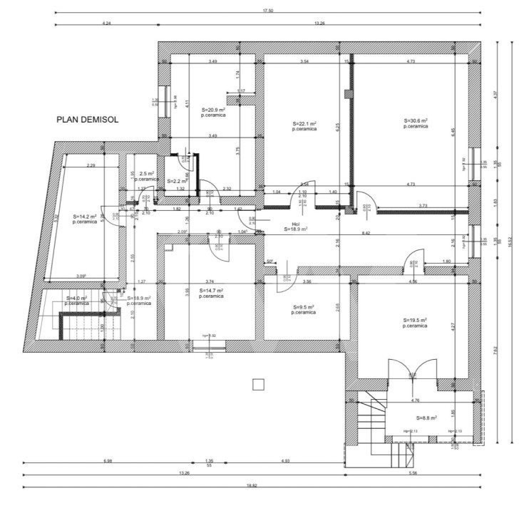
1. Demisol (Funcționalitate): * Spațiu tehnic și de depozitare organizat în multiple încăperi (între 9 mp și 30 mp).
Ideal pentru cramă, arhivă, zonă de servicii sau laborator.
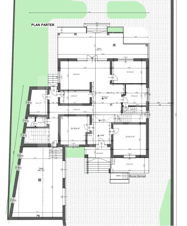
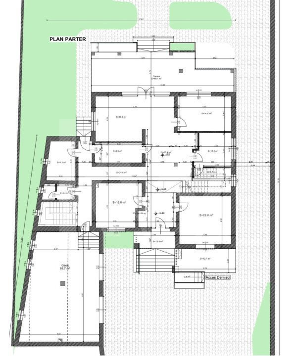
2. Parter (Zonă de Primire & Logistică):
Garaj Masiv (68.7 mp): Acces facil, spațiu generos pentru flotă auto sau recepție marfă.
Living/Sală de așteptare (27.4 mp) cu acces direct pe o terasă superbă de 48.1 mp.
Bucătărie, zone de birouri și grupuri sanitare.
3. Etaj 1 (Zonă Operațională/Locuibilă):
Compartimentat în 5-6 camere independente (între 10 mp și 23 mp).
Hol central generos (30.7 mp) care asigură un flux excelent între încăperi.
Balcoane multiple pentru lumină naturală sporită.
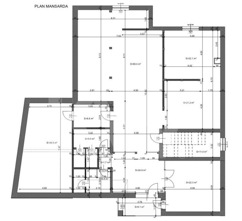
4. Mansardă (Spațiu Creativ/Open Space):
Include o zonă impresionantă de 69.4 mp, perfectă pentru sală de conferințe, studio de fitness sau un penthouse exclusivist.
Multiple spații auxiliare pentru depozitare sau băi suplimentare.
🚀 Destinații Recomandate (Datorită planimetriei):
Clinică Medicală sau Centru de Recuperare: Datorită numărului mare de încăperi ce pot servi drept cabinete.
Sediu Administrativ / IT: Spații largi pentru birouri și un garaj ce poate fi transformat în server-room sau depozit.
Grădiniță sau Școală Privată: Curtea de 1564 mp permite amenajarea unui loc de joacă vast, iar interiorul oferă săli de clasă aerisite.
Pensiune / Aparthotel: Structura permite configurarea a peste 12 unități de cazare.
💎 Atuurile Proprietății:
Amprentă la sol generoasă și curte liberă imensă (peste 1200 mp de teren liber).
Parcare privată: Curtea frontală poate fi configurată pentru 12+ locuri de parcare.
Eficiență: Compartimentare ce permite separarea fluxurilor (clienți vs. personal).
Vă invităm la o vizionare pentru a înțelege adevărata amploare a acestei construcții!